Skip to main content
+371 20 368 830  info@sed.lv
I - V 9:00 - 18:00 VI - VII
LV-1002,  Riga,  Ventspils iela 55

There are no products in your shopping cart.

0 Prekės € 0.00

NAMŲ IR SODO PREKĖS

  • Latviešu Latviešu
  • Lietuvių Lietuvių
  • Eesti Eesti
  • Deutsch Deutsch
  • Русский Русский

Search form

«
Visited pages ▼
SURENKAMAS SODO NAMELIS - BS03 (400X295CM)

SURENKAMAS SODO NAMELIS - BS03 (400X295CM)

  • PAGRINDINIS
  • ŠILTNAMIAI
    • ŠILTNAMIAI
    • POLIKARBONATAS
    • POLIKARBONATINIAI ŠILTNAMIAI
    • PLĖVINIAI ŠILTNAMIAI
    • MEDINĖS ŠILTNAMIAI
    • ŠILTNAMIO AKSESUARAI
    • AGROPLĖVĖS IR PLĖVĖS
    • SODO DARŽELIAI
  • RŪKYKLOS, GRILLAI, ČAVUNO INDAI, KATILAI, VIRTUVĖS PRIEDAI
  • SPORTUI, TURIZMUI, POILSIO
  • SVEIKATA IR GROŽIS
  • SURENKAMOS SODO STATINĖS
  • DUOBĖS KRAŠTINĖS IR SODO TAKELIAI
  • SODO TECHNIKA
  • SUVIRINIMO ĮRANGOS IR AKSESUARAI
    • SUVIRINIMO ĮRANGOS IR AKSESUARAI
    • INDUKCIJOS ŠILDYTUVAI
    • SUVIRINIMO ĮRANGOS
  • POLISTIROLO PJOVIMO ĮRANKIS
  • MEDIENOS APDOROJIMO ĮRANGOS
  • AUGALŲ IR KRŪMŲ ATRAMOS
    • AUGALŲ IR KRŪMŲ ATRAMOS
    • SODO ARKOS, GROTELĖS IR TVORELĖS
    • AUGALŲ ATRAMOS
    • KRŪMŲ ATRAMOS
    • AUGALŲ FIKSAVIMO PRIEDAI
  • SODO - LAUKO BALDAI
    • SODO - LAUKO BALDAI
    • VAIKŲ ŽAIDIMŲ NAMELIS
    • SODO BALDŲ KOMPLEKTAI
    • SODO GĖLIŲ IR AUGALŲ DĖŽĖS
    • SODO SUOLIAI IR KĖDĖS
    • STALAI
    • LAUKO SKĖČIAI
    • SODO STALO IR KĖDŽIŲ KOMPLEKTAI
    • PIKNIKO STALAI
    • SANDĖLIAVIMO LENTYNOS
    • LAUKO DAIKTADĖŽĖS IR SAUGYKLOS
    • LAUKO PAVĖSINĖ
    • SMĖLIO DĖŽĖS
  • BUITIES PREKĖS
  • VĀZĖS AUGALAMS IR PERKĖLIMUI
  • KIEMUI IR SODUI
  • PURKŠTUVAI IR LAISTYMO SISTEMOS
  • VANDENS REZERVUARAI
  • PREKĖS KŪDIKIAMS
  • PREKĖS GYVŪNAMS
  • PAGRINDINIS
  • KONTAKTI
  • MANO KABINETAS
    • PRISIJUNGTI
    • ATKURTI SLAPTAŽODĮ
    • DIDMENINĖ PREKYBA
    • APIE MUS
  • ŠILTNAMIAI
    • POLIKARBONATINIAI ŠILTNAMIAI
    • POLIKARBONATAS
    • PLĖVINIAI ŠILTNAMIAI
    • MEDINĖS ŠILTNAMIAI
    • ŠILTNAMIO AKSESUARAI
    • AGROPLĖVĖS IR PLĖVĖS
    • SODO DARŽELIAI
    • DUOBĖS KRAŠTINĖS IR SODO TAKELIAI
  • RŪKYKLOS, GRILLAI, ČAVUNO INDAI, KATILAI, VIRTUVĖS PRIEDAI
  • SPORTUI, TURIZMUI, POILSIO
  • SVEIKATA IR GROŽIS
  • SURENKAMOS SODO STATINĖS
  • AGROPLĖVĖS IR PLĖVĖS
  • AUGALŲ IR KRŪMŲ ATRAMOS
  • DUOBĖS KRAŠTINĖS IR SODO TAKELIAI
  • SODO - LAUKO BALDAI
  • SODO TECHNIKA
  • SUVIRINIMO ĮRANGOS IR AKSESUARAI
  • POLISTIROLO PJOVIMO ĮRANKIS
  • MEDIENOS APDOROJIMO ĮRANGOS
  • BUITIES PREKĖS
  • VĀZĖS AUGALAMS IR PERKĖLIMUI
  • PURKŠTUVAI IR LAISTYMO SISTEMOS
  • KIEMUI IR SODUI
  • PANELIŲ TVOROS 3D-2D
  • PREKĖS KŪDIKIAMS
  • PREKĖS GYVŪNAMS
  • PAGRINDINIS
  • KABINETAS
    • PRISIJUNGTI
    • MANO KABINETAS
    • ATKURTI SLAPTAŽODĮ
  • APIE MUS
  • DIDMENINĖ PREKYBA
  • KONTAKTI
Klauskite mūsų...

Katalogo kategorija
SURENKAMI SODO PASTATAI / SURENKAMI MEDINIAI SODO NAMELIAI

  • View the full image
  • View the full image
  • View the full image
  • View the full image
  • View the full image
€ 1780.00

Horizontal Tabs

Apraksts

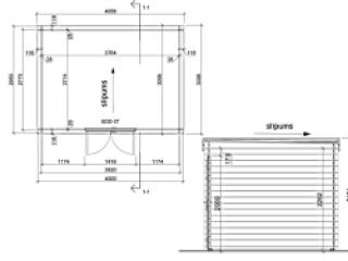
SURENKAMAS SODO NAMELIS - BS03 (400X295CM) Prekės Nr.: 346-06-23SED

Techninė informacija:
Namo išmatavimai: 4.00 x 2.95 m
Patalpos plotas: 10.21 m2
Karnizo aukštis: 2.481 m
Sienų storis: 28 mm
Grindų storis: --------
Medžiaga: Eglė
Stogo plotas: 12.19 m2

Pagrindinė komplektacija:
Stogas lentos, vėjo lentos
Stikliniai langai mediniame rėme (jei dizainas numato)
Stiklintos medinės durys
Impregnuotos pagrindo sijos
Surinkimo schema

Kainą sudaro:
* sienos - be apdorojimo, be izoliacinės medžiagos
* grindys - be grindų
* stogas - 18mm stogo lenta, be stogo dangos, be izoliacijos
* įtrauktos durys ir langai (jei dizainas numato)
* garažams - įtraukti garažo vartai

Papildoma informacija:

Už papildomą mokestį galima:
18mm grindų komplektas + 35.00 Eur/m.kv.
28mm grindų komplektas + 44.00 Eur/m.kv.

*Visos kainos nurodytos, įskaitant PVM 21%

Parameters
SKU: 346-06-23SED
Dimensions: 420 cm × 110 cm × 80 cm
Weight: 770 kg
  • Latviešu Latviešu
© 2026 SED